School Lane, Castleford, West Yorkshire, WF10
School Lane, Castleford, West Yorkshire, WF10
Let Agreed
Let
Under Offer
To Let
For Sale
Sold
Sold STC
Property Summary
Full Details
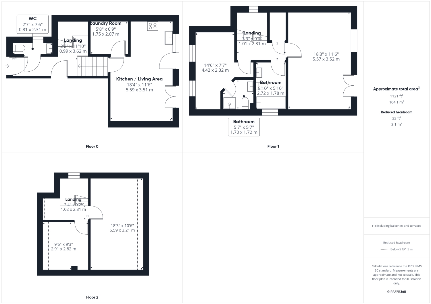
This stunning, three bedroom three storey detached property briefly comprises of:
Entrance Hall - 3'3" x 11'11" - With access into the integral garage WC, stairs up to the first floor and stairs down to the ground floor given access into the kitchen lounge area.
Wc - 2'8" x 7'7" - A toilet with a low-level flush, wash hand basin, a towel radiator. UPVC double glazed window to the side elevation. Tiling to the walls. Spotlights to the ceiling.
Kitchen - 18'4" x 11'6" - With a range of wall and base modern kitchen units, complementary work surfaces over. A stainless-steel sink drainer and mixer tap. Electric oven hob and extractor fan over. There are spotlights to the ceiling. A dining area with patio doors which lead out to the rear garden. Gas central heated radiator A door leads into the utility room.
Utility Room - 5'9" x 6'9" - With a range of wall and base kitchen units with complementary work surfaces over space for a washing machine and space for a dryer. Gas central heated radiator.
First Landing - With access doors to the lounge, bathroom and bedroom. Second staircase leads up to the second floor. Storage cupboard.
Lounge - 18'3" x 11'7" - UPVC double glazed window to the rear elevation, Juliet balcony with double glazed patio doors, gas central heated radiators.
Bathroom - 8'11" x 5'10" - A bath with mixer tap and shower attachment over, glass partition shower screen. UPVC double glazed window to the side elevation. Spotlights and extractor fan to the ceiling. A towel radiator and a sink with a vanity unit below toilet with a push flush.
Bedroom One - 14'6" x 7'7" - UPVC double glazed windows to the front elevation, gas central heated radiator storage cupboard. Access door to the ensuite.
Ensuite - 5'7" x 5'8" - Toilet with a low-level flush shower cubicle with electric shower. Towel radiator and a wash hand basin.
Stairs To Second Floor - 3'4" x 9'3" - Providing access to 2 bedrooms.
Bedroom Two - 9'7" x 9'3" - With with roof Velux skylight windows and a gas central heated radiator.
Bedroom Three - 18'4" x 10'6" - With with roof Velux skylight windows and a gas central heated radiator.
To The Rear - There is a paved garden and decking area with a side access gate and fenced to surround for privacy.
To The Front - There is a blocked paved driveway leading to the garage.
Garage - With an up and over door. Power and light with access into the house. x 7'7" - A toilet with a low-level flush, wash hand basin, a towel radiator. UPVC double glazed window to the side elevation. Tiling to the walls. Spotlights to the ceiling.































































